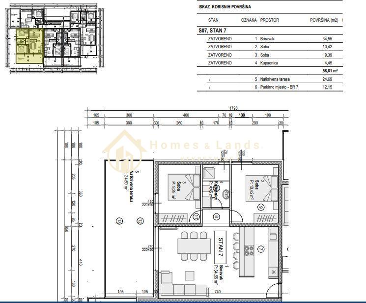
Pag,Povljana,3-soban stan 70,31m2 na 2katu(S10) s velikom terasom i PM
- 223.900€
- 3.184€/m²
Pag,Povljana,3-soban stan 70,31m2 na 2katu(S10) s velikom terasom i PM
- 223.900€
- 3.184€/m²
Pregled
ID nekretnine: 519
- Stan
- 2026
- 70.31 m²
- 1
- 1
Opis
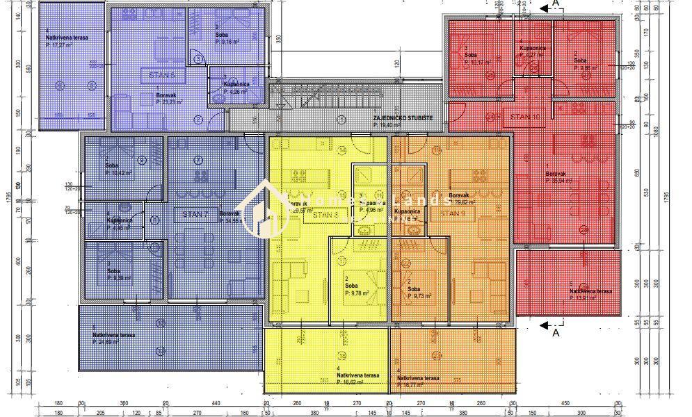
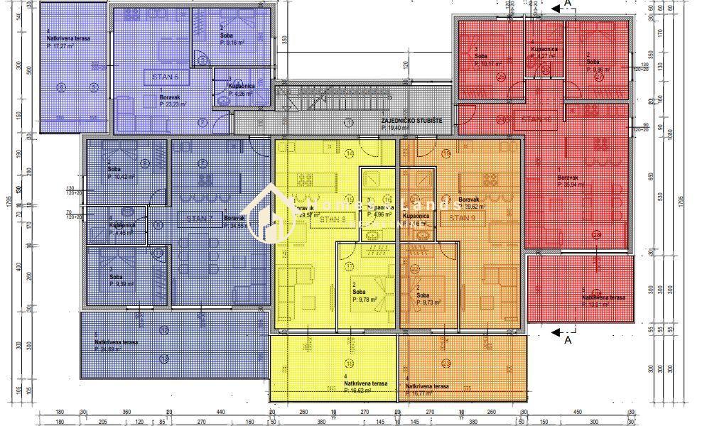
Na otoku Pagu, u prekrasnom mjestu Povljana u izgradni je nova stambena zgrada s 15 stanova.
Zgrada je projektirana prema najvišim građevinskim i energetskim standardima, s naglaskom na udobnost, dugotrajnost i estetsku vrijednost.
KLJUČNE KARAKTERISTIKE OBJEKTA:
-
Ukupno 15 stanova – različitih kvadratura i rasporeda
-
Dizalica topline u svakom stanu – visoka energetska učinkovitost i niski troškovi
-
Podno grijanje u cijelom stanu
-
Ugrađena klima jedinica za hlađenje i dodatnu udobnos
-
Vanjski parking
-
Moderna arhitektura i funkcionalan raspored svih jedinica
-
Energetski razred A+ – odlična izolacija, vrhunski materijali
Energetski razred
-
Energetski razred: A+
- | Energetski razred A+A+
- A
- B
- C
- D
- E
- F
- G
- H
- U izradi
Pojedinosti
Updated on 15 travnja, 2026 at 1:15 am-
ID nekretnine 519
-
Cijena 223.900€
-
Površina nekretnine 70.31 m²
-
Spavaća soba 1
-
Sobe 2
-
Kupaonica 1
-
Godina izgradnje 2026
-
Vrsta nekretnine Stan
-
Status nekretnine Novogradnja, Prodaja
Adresa
Otvori na Google kartama-
Adresa: , Povljana, Zadarska, Hrvatska
-
Grad: Povljana
-
Regija/županija: Zadarska
-
Poštanski broj: 23249
-
Država: Hrvatska
Kalkulator stambenog kredita
Mjesečno
-
Kapara
-
Iznos kredita
-
Mjesečna otplata hipoteke
-
Porez na nekretnine
-
Osiguranje nekretnine
-
Obvezna polica osiguranja nekretnine
-
Mjesečna pričuva
Značajke
Grijanje
Opis nekretnine
Opremljenost nekretnine
Osnovna infrastruktura
Parking i garaža
Prostorije
Stanje nekretnine
Stolarija

